NASSAUSTRAAT – BOUWNUMMER 5 EN 6
In februari 2026 start de realisatie van de laatste twee casco twee-onder-een-kapwoningen binnen het nieuwbouwproject Tussen de Molens. De oplevering wordt verwacht in mei/juni 2026.
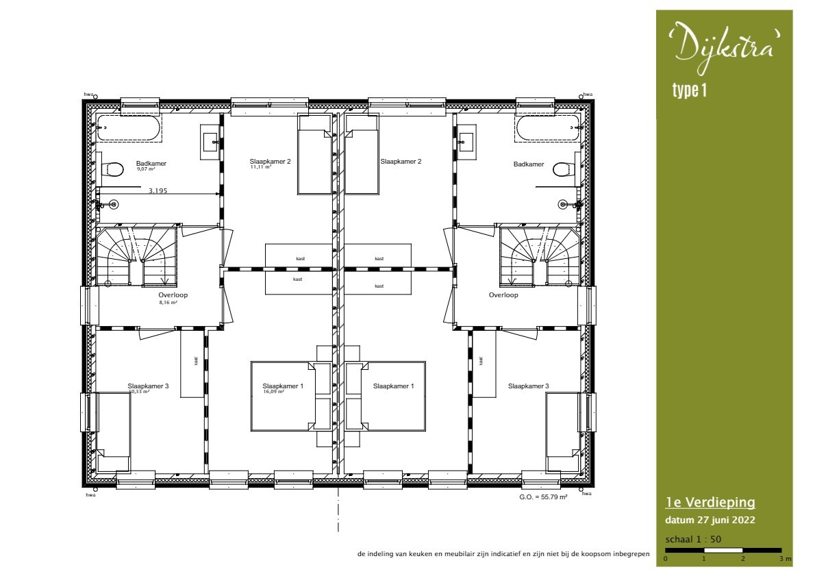
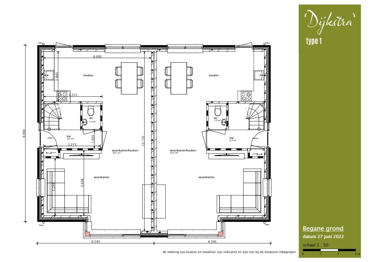
Woningtype: ‘Dijkstra’
Deze ruime twee-onder-een-kapwoning met erker, schoorsteen en voordeurluifel, kenmerkt zich door een robuuste, eigentijdse uitstraling. De woningen bieden veel leefruimte, met drie slaapkamers en een badkamer op de eerste verdieping en de mogelijkheid om op de tweede verdieping een vierde slaapkamer te creëren. Het ontwerp is karakteristiek door de duidelijke horizontale lijnaccenten.
De woningen zijn volledig gasloos, uitstekend geïsoleerd en voorzien van een eigen warmtepomp, minimaal vier zonnepanelen en HR++-beglazing. Ze worden gebouwd met hoogwaardige, onderhoudsarme materialen, zodat ze klaar zijn voor de toekomst.
Bijzonderheden:
- Royale eigentijdse 2-onder-1-kapwoning
- Gasloos, duurzaam, energiezuinig en onderhoudsarm
- Duurzaam & comfortabel
- Toekomst bestendig en zorgeloos wonen
- Warmtepomp, zonnepanelen en HR++ beglazing
- Verkoopprijs onder de NHG grens waardoor een lagere hypotheekrente
- De woning wordt in casco staat opgeleverd, inclusief badkamer en toilet, maar zonder
keuken
Verkoopinformatie en meer informatie over de verkoopprocedure is beschikbaar bij ons op kantoor! Kom gerust langs.
Project tussen de molens
Op het terrein van het voormalige "Veenstra Glazenborg" worden deze duurzame, gasloze en energiezuinige 2-onder-kap-woningen aangeboden. De architectuur is zowel robuust, dorps, als ook heel eigentijds. De aandacht voor detail en materiaalgebruik geven deze woningen een uniek rijk karakter. De woningen worden voorzien van de nieuwste technieken en zijn klaar voor de toekomst.
Winschoten
Winschoten is een uitstekende uitvalbasis dankzij de gunstige ligging aan de A7. In nog geen 30 autominuten bent u in de bruisende binnenstad van Groningen of in Duitsland. Het winkelcentrum van Winschoten is voor u op loopafstand. met een lange winkelstraat, het overdekte winkelcentrum 't Rond en op zaterdag een gezellige weekmarkt. Er zijn verschillende sportverenigingen, een sporthal en een overdekt zwembad. Heeft u zorg nodig dan is Winschoten een goede plek om te wonen. Een huisarts, tandarts, dierenarts en een zorgcentrum zijn zelfs binnen 400 meter van de woningen. Het Ommelander Ziekenhuis is Scheemda is op 8 kilometer afstand snel bereikbaar.
- LandNL
- Type woningAND
- Bouwjaar2026
- Aantal slaapkamers3
- Perceelgrootte5 m2
- Woonoppervlakte141 m2
|
 | | Buurt gegevens/postcode gebied 9671 |
|
 | | Nederland |
|
|
| Totale oppervlakte (hectaren) |  | | 120 |
|
| Oppervlakte land (hectaren) |  | | 119 |
|
|
| Aantal woningen (particulier) |  | | 2240 |
|
| Gemiddelde woz waarde van een huis |  | | 57176 |
|
| |  | | 91663 |
|
|
| Aantal bedrijven |  | | 6 |
|
| Percentage industrie en bouwnijverheid |  | | 7% |
|
| |  | | 18% |
|
| Percentage commerciële dienstverlening |  | | 72% |
|
| |  | | 63% |
|
| Percentage niet commerciële dienstverlening |  | | 20% |
|
| |  | | 17% |
|
|
| Aantal inwoners per km2 |  | | 3459 |
|
| |  | | 2411 |
|
| Aantal inwoners |  | | 4120 |
|
| Percentage mannen |  | | 46% |
|
| |  | | 49% |
|
| Percentage vrouwen |  | | 54% |
|
| |  | | 51% |
|
|
| Percentage niet in een gezin |  | | 34% |
|
| |  | | 20% |
|
| Aantal gezinnen |  | | 1040 |
|
| Gemiddelde gezinsgrootte |  | | 2.59 |
|
| |  | | 3.05 |
|
| Percentage gezinnen met kinderen |  | | 42% |
|
| |  | | 61% |
|
|
| Percentage 0 tot 14 jaar |  | | 10% |
|
| |  | | 18% |
|
| Percentage 15 tot 24 jaar |  | | 10% |
|
| |  | | 12% |
|
| Percentage 25 tot 44 jaar |  | | 25% |
|
| |  | | 30% |
|
| Percentage 45 tot 64 jaar |  | | 25% |
|
| |  | | 25% |
|
| Percentage 65 en ouder |  | | 31% |
|
| |  | | 13% |
|
|
| Percentage allochtoon |  | | 2% |
|
| |  | | 7% |
|
|
| Gemiddeld inkomen per bewoner |  | | 10028 |
|
| |  | | 10026 |
|
| Gemiddeld inkomen per ontvanger |  | | 13431 |
|
| |  | | 15269 |
|
| Percentage lage inkomens (<12025 €) |  | | 51% |
|
| |  | | 39% |
|
| Percentage hoge inkomens (>21000 €) |  | | 13% |
|
| |  | | 22% |
|
| Percentage met uitkering |  | | 27% |
|
| |  | | 18% |
|
|