Op een uitstekende locatie, op loopafstand van het centrum van Winschoten, staat deze charmante vrijstaande jaren ’30 woning, met tuinkamer. De woning, welke gebouwd is in 1937, is de afgelopen jaren grotendeels verbouwd. Met een fraai aangelegde voortuin, drie slaapkamers, een aluminium tuinkamer met glazen schuiframen, tuinhuisje, een vrijstaande houten garage en een diepe tuin, is dit een ideale gezinswoning.
Begane grond:
Via de entree betreedt u de woning. De woonkamer van 22 m2, met veel lichtinval is voorzien van een laminaatvloer en een meterkast met 10 groepen, 4 aardlekschakelaars en krachtstroom.
De moderne keuken (2024) van 20 m2, is uitgerust met luxe inbouwapparatuur, waaronder een vaatwasser, inductiekookplaat, magnetron/oven, koelkast en diepvriezer. Vanuit de keuken heeft u toegang tot de kelder van 13 m2 en de bijkeuken van 8.5 m2 .
De luxe badkamer in jaren ’30-stijl beschikt over een ruime inloopdouche, ligbad en dubbele waskommen. Daarnaast is er een separaat toilet met fonteintje.
De bijkeuken is voorzien van een wasmachineaansluiting, een Intergas HR-Combiketel uit 2025 en een warmteterugwinningssysteem, Zehnder ComfoAir Q, met koelfunctie.
Verdieping:
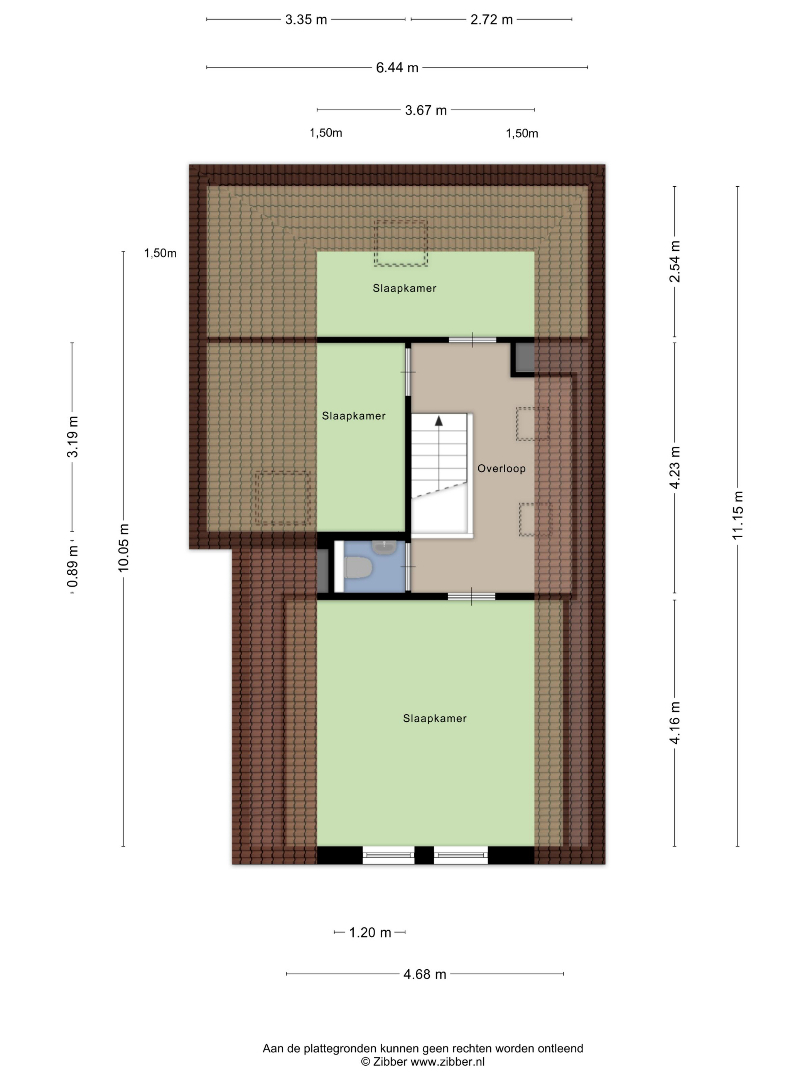
De overloop met twee dakramen geeft toegang tot drie comfortabele slaapkamers van 5,3 m2, 4,7 m2 en 15,3 m2 en een tweede toilet met wastafel. De grootste slaapkamer is voorzien van kunststof kozijnen. Eén van de slaapkamers biedt toegang tot de kruipzolder.
Bijzonderheden:
- Grotendeels verbouwd sinds 2021 met o.a. in 2025 een nieuw dak en nieuwe dakgoten
- HR-Combi ketel uit 2025 (Intergas)
- De woning is voorzien van een warmteterugwinningssysteem (WTW) voor energiezuinige
ventilatie met koelfunctie (Zehnder ComfoAir Q)
- Energielabel A
- Voorzien van waterontharder
- Alle ruimtes afzonderlijk verwarmbaar
- HR++ beglazing
- voorbereiding aansluitpunt elektrische auto aanwezig.
- Aan de zijkant van de woning zijn drie ramen voorzien van elektrisch bedienbare screens en
op de bovenverdieping 2 ramen met handmatig bedienbare screens.
- vrijstaande houten garage van 36 m2 met meterkast en wateraansluiting
Omgeving
Alle dagelijkse voorzieningen bevinden zich binnen handbereik, waaronder supermarkten, winkels, horeca, scholen, parken en Cultuurhuis De Klinker.
De woning biedt een uitstekende balans tussen rust, ruimte en bereikbaarheid. Het trein- en busstation ligt op loopafstand en via de A7 bent u binnen korte tijd in Groningen of Duitsland. Ook het Oldambtmeer is snel bereikbaar via de Pieter Smit-fietsbrug.
Aanvaarding: in overleg, op korte termijn mogelijk.
- LandNL
- Type woningvrijstaande woning
- Bouwjaar1937
- Aantal slaapkamers3
- Perceelgrootte4 m2
- Woonoppervlakte105.60 m2
- Oppervlakte woonkamer22.38 m2
- Inhoud440.26 m3
|
 | | Buurt gegevens/postcode gebied 9671 |
|
 | | Nederland |
|
|
| Totale oppervlakte (hectaren) |  | | 120 |
|
| Oppervlakte land (hectaren) |  | | 119 |
|
|
| Aantal woningen (particulier) |  | | 2240 |
|
| Gemiddelde woz waarde van een huis |  | | 57176 |
|
| |  | | 91663 |
|
|
| Aantal bedrijven |  | | 6 |
|
| Percentage industrie en bouwnijverheid |  | | 7% |
|
| |  | | 18% |
|
| Percentage commerciële dienstverlening |  | | 72% |
|
| |  | | 63% |
|
| Percentage niet commerciële dienstverlening |  | | 20% |
|
| |  | | 17% |
|
|
| Aantal inwoners per km2 |  | | 3459 |
|
| |  | | 2411 |
|
| Aantal inwoners |  | | 4120 |
|
| Percentage mannen |  | | 46% |
|
| |  | | 49% |
|
| Percentage vrouwen |  | | 54% |
|
| |  | | 51% |
|
|
| Percentage niet in een gezin |  | | 34% |
|
| |  | | 20% |
|
| Aantal gezinnen |  | | 1040 |
|
| Gemiddelde gezinsgrootte |  | | 2.59 |
|
| |  | | 3.05 |
|
| Percentage gezinnen met kinderen |  | | 42% |
|
| |  | | 61% |
|
|
| Percentage 0 tot 14 jaar |  | | 10% |
|
| |  | | 18% |
|
| Percentage 15 tot 24 jaar |  | | 10% |
|
| |  | | 12% |
|
| Percentage 25 tot 44 jaar |  | | 25% |
|
| |  | | 30% |
|
| Percentage 45 tot 64 jaar |  | | 25% |
|
| |  | | 25% |
|
| Percentage 65 en ouder |  | | 31% |
|
| |  | | 13% |
|
|
| Percentage allochtoon |  | | 2% |
|
| |  | | 7% |
|
|
| Gemiddeld inkomen per bewoner |  | | 10028 |
|
| |  | | 10026 |
|
| Gemiddeld inkomen per ontvanger |  | | 13431 |
|
| |  | | 15269 |
|
| Percentage lage inkomens (<12025 €) |  | | 51% |
|
| |  | | 39% |
|
| Percentage hoge inkomens (>21000 €) |  | | 13% |
|
| |  | | 22% |
|
| Percentage met uitkering |  | | 27% |
|
| |  | | 18% |
|
|